- Home
- Produkte & Anwendungen
- Ventilatorenübersicht
- Mobile Ventilatoren
- Freilaufende Ventilatoren Große Baureihen
- Gehäuseventilatoren Große Baureihen
- Ventilatoren große Baureihen
- Flexline-Baureihe
- Freiläufer Ventilatoren bis 450°C
- Heißgasumwälzer für Temperaturen von bis zu 1200°C
- Produktsuche
- Ventilatorräder
- Zubehör
- Anwendungen und Einsatzgebiete
- Service & Kontakt
- Technik
- Über Karl Klein
Ventilatorräder und Auslegung von Ventilatoren
Vorwärtsgekrümmt
Eigenschaften:
- hohe Leistungsdichte (Baugröße etwa halb so groß wie bei rückwärtsgekrümmten Rädern mit gleicher Leistung)
- Aktionsrad → Rad erzeugt hauptsächlich kinetische Energie, die durch Gehäuse in statischen Druck umgewandelt wird → Einsatz nur mit Gehäuse
- Totalwirkungsgrad 60-65%
- werden auch als Trommelläufer bezeichnet → TLR/TS
- gute Akustik
Schaufelformen
Spiralgehäuse
Spiralgehäuse wandeln dynamischen in statischen Druck um. Der Öffnungswinkel von Spiralgehäusen sollte bei maximal 7° liegen, da es bei größeren Öffnungswinkeln zu Strömungsablösungen kommen kann. Je größer die Druckerhöhung eines Ventilators, desto kleiner muss der Spiralwinkel des Gehäuses ausgelegt werden.
Wichtigste Kennwerte
Der Betriebspunkt: ergibt sich aus:
- Volumenstrom
- statische Druckerhöhung Δpfa
- Totaldruckerhöhung Δpt
- Luftleistung (Druckerhöhung x Volumenstrom)
Unterscheidung der Druckwerte
Auslegung von Ventilatoren
Ventilatorkennlinie:
- Kennlinie aus Druck über Volumenstrom gibt den Volumenstrom an, der bei einer bestimmten Druckerhöhung erreicht wird.
Anlagenkennlinie:
- Durch mechanische Reibung der Luft in der Anlage, entstehen Druckverluste, diese steigen in der Regel quadratisch zur Strömungsgeschwindigkeit → verdoppelt sich der Volumenstrom, vervierfacht sich der Druckverlust, durch diesen Zusammenhang aus Druck und Volumenstrom ergibt sich eine parabelförmige Kennlinie
Betriebspunkt
Hinweis
Der Betriebspunkt sollte idealerweise bei 50-70% des maximalen Volumenstroms liegen, da in diesem Bereich in der Regel die besten Wirkungsgrade erreicht werden. Ein Ventilator sollte nach Möglichkeit nicht im vorderen -meist fast waagerechten- Kennlinienbereich arbeiten, da bei geringfügiger Änderung der Druckerhöhung der Volumenstrom bereits stark einbrechen kann.
Proportionalitätsgesetze
Drehzahländerung:
Merke: der Volumenstrom ändert sich proportional, der Druck quadratisch proportional und die Leistungsaufnahme kubisch proportional zur Drehzahländerung
Drehzahländerung:
Merke: der Volumenstrom ändert sich proportional, der Druck quadratisch proportional und die Leistungsaufnahme kubisch proportional zur Drehzahländerung
Änderung der Radgröße
Hinweis: die Proportionalitäten gelten nur bei geometrischer Ähnlichkeit! Mit zunehmender Radgröße erhöht sich der Wirkungsgrad i. d. R. leicht, diese Änderung ist hier nicht erfasst.
Änderung der Radgröße
Hinweis: die Proportionalitäten gelten nur bei geometrischer Ähnlichkeit! Mit zunehmender Radgröße erhöht sich der Wirkungsgrad i. d. R. leicht, diese Änderung ist hier nicht erfasst.
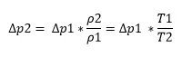
Änderung der Luftdichte bzw. –temperatur
Hinweis: der Volumenstrom bleibt unabhängig von der Dichte konstant, die Druckänderung betrifft statischen-, dynamischen- und Totaldruck! Temperatur in K!
Änderung der Luft- bzw. Temperaturdichte
Hinweis: der Volumenstrom bleibt unabhängig von der Dichte konstant, die Druckänderung betrifft statischen-, dynamischen- und Totaldruck! Temperatur in K!
Merke:
Man benötigt viel Volumenstrom aber wenig Druck → großer Raddurchmesser, wenig Drehzahl
Man benötigt wenig Volumenstrom aber viel Druck → kleiner Raddurchmesser, hohe Drehzahl
Man hat niedrige Mediumsdichte (z.B. durch große Höhe, hohe Temperatur oder Dämpfe) → das Rad muss auf größere Druckerhöhung ausgelegt werden
Erhöht sich die Drehzahl um 20% (60Hz), so steigt die Leistungsaufnahme um ca. 75%
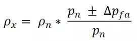
Dichteänderung
Die Dichteänderung des Fördermediums muss bei der Auslegung von Ventilatoren berücksichtigt werden, wenn:
- Gase mit anderer Dichte als Luft gefördert werden
- große Mengen Dampf in der Luft sind
- sich die Mediumstemperatur erheblich ändert (Dichte von Gasen ist proportional zur Temperatur in Kelvin)
- die statische Druckerhöhung 3000Pa erheblich übersteigt (Kompressibilität der Luft)
- die Strömungsgeschwindigkeit 100m/s übersteigt
Hinweis: gilt nur, wenn die Temperaturänderung vernachlässigt werden kann!
Einströmdüsen
Um eine wirbelfreie Zuströmung der Luft zu gewährleisten, benötigen Radialventilaoren Einströmdüsen. Die richtige Positionierung ist hierbei von entscheidender Bedeutung.
Räder für Staubförderung
Problem:
an der Schaufelsaugseite setzt sich Staub ab, der durch die Fliehkraft an die Schaufel gepresst wird. Zudem ist in diesem Bereich die Strömungsgeschwindigkeit geringer, daher werden die Partikel nicht „weggeblasen“. Es kann zu Unwucht kommen.
Lösung:
es werden Räder mit geraden Schaufeln und geringerem Sehnenwinkel -also steiler gestellten Schaufeln- eingesetzt. So werden Partikel besser durch die Fliehkraft aus dem Rad geschleudert.
Radfestigkeit
Zulässige Höchstdrehzahl wird bei Laufrädern folgendermaßen ermittelt:
- Rad wird mit zunehmender Drehzahl geschleudert und vermessen bis eine bleibende Verformung von 0,5mm erreicht ist. Diese Drehzahl wird durch einen Sicherheitsfaktor geteilt und ergibt die zulässige Höchstdrehzahl.
- Alternativ: FEM- Berechnung
offene Radialräder
Für Förderung extrem langfaseriger Medien, kann man Räder ohne Deckscheibe verwenden. Zu beachten ist aber, dass diese Räder nicht für große Druckerhöhungen geeignet sind, daher bezeichnet man sie auch als Förderräder. Zudem lässt durch die fehlende Deckscheibe die Radfestigkeit nach. Typische Anwendungen sind zum Beispiel Luftumwälzer in Trocknungsanlagen.









